| 网站首页 | 资讯 | 影音 | 图片 | 论坛 | 模拟驾考 | 免费取名算命 | 瓷都工具 | 留言本 | 域名 | 瓷都商城 | 汇款 | 
您现在的位置: 瓷都热线|诚信中国:“一就是一”(1941.CN) >> 资讯 >> 房产信息 >> 家居装饰 >> 正文 登录 注册
专 题 栏 目
最 新 热 门
最 新 推 荐
相 关 文 章
没有相关资讯
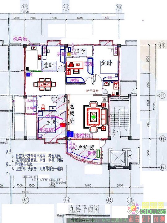
[组图]我的新房         ★★★
我的新房
作者:ahui 文章来源:cidu.net 更新时间:2008-1-23 0:56:17
【声明:转载此信息在于传递更多信息,其内容表达的观点并不代表本站立场,由这些信息所产生的一切后果本站不负任何责任。如果您对本信息有什么意见,欢迎和本站联系,谢谢!】http://CiDu.Net

新房子坐落在瓷都德化最繁华的地点——三角街。下面是我房子的平面布置图:

[1] [2] [3] 下一页


声明:以上信息资料大都是网上搜集而来,版权归作者,如有版权问题请留言告知我将马上改正。
文中所提到的各种观点只是原文观点,各种说法未经一一确认。并不代表本站认可此观点!!
资讯录入:admin    责任编辑:admin 
  • 上一篇资讯:

  • 下一篇资讯: 没有了
  • 【字体: 】【发表评论】【加入收藏】【告诉好友】【打印此文】【关闭窗口
    点击数:
      网友评论:(只显示最新10条。评论内容只代表网友观点,与本站立场无关!)